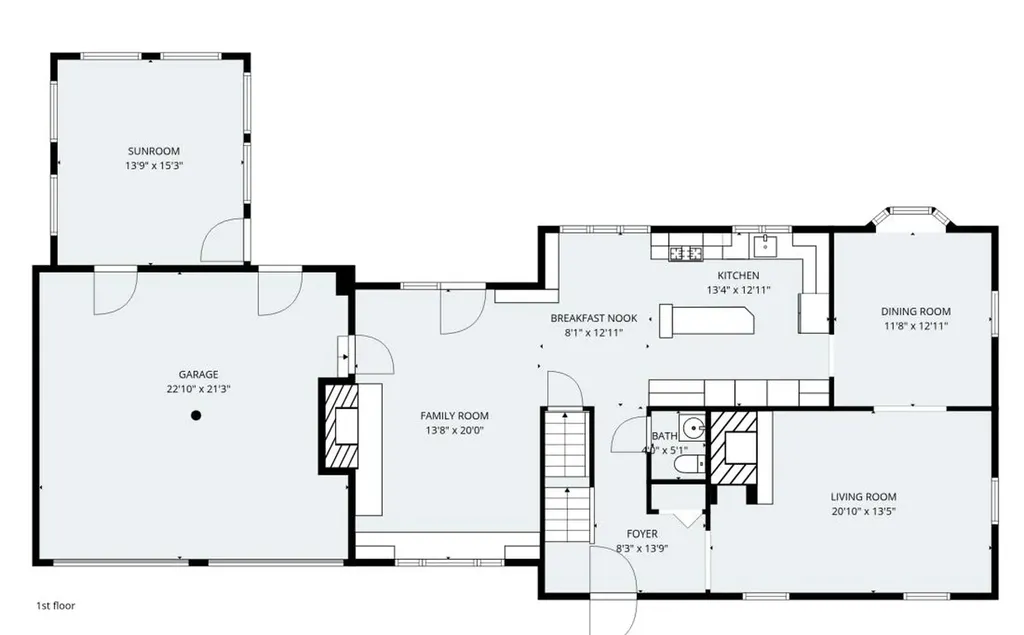
Located in one of Greenland's GREAT BAY NEIGHBORHOODS, this 4BR/3BA well maintained Colonial offers a thoughtfully updated living environment. With more than 3,500 sf of total living space, this home has benefited from numerous improvements in recent years including hardwood flooring, windows and OWNED solar panels. This contributes to energy efficiency and exceptional utility savings with a Heat Pump/AC system ensuring sustainability without sacrificing comfort. The first floor features an open concept kitchen which is well-appointed with an abundance of custom cabinetry and newer upscale appliances. If you love to cook, this space offers functionality with solid surface counters, a dual fuel gas range, and a wall convection oven. The bright formal dining room, living room with a wood-burning fireplace, and a sun-filled family room, complete with built-in cabinetry and gas fireplace, create a variety of inviting spaces for everyday living and entertainment. On the second level, you will find the primary bedroom with en-suite bath and three additional bedrooms, a full bath, plus space for an office or den and potential for more living space with a walk-up attic. The finished walk-out basement provides valuable additional living space. There is a finished Sunroom that might just be your favorite space to enjoy a book or watch the sunsets over the bay! An expansive backyard is an ideal setting for an in-ground pool, further increasing the home's outdoor living potential. For outdoor pleasure, the 36' x12' deck is perfect for gatherings. Professional custom landscaping surrounds the 1.47 acres, enhancing privacy and curb appeal. Ideally situated in a fabulous location within 1 hour to Boston or Portland, this home offers convenient commuting access while maintaining a peaceful residential setting. This is a rare opportunity to enjoy space, quality updates, energy efficiency, and a sought-after Seacoast lifestyle. OPEN HOUSE on Sunday 2/22 from 12-2pm

Listing Tools

Property Details of 2 Orchard Hill Road

Property Details

Interior Features

Exterior Features

Utilities and Appliances

Community

Other Details

Finance

Map Location

Broker Reciprocity 

Copyright 2026 PrimeMLS, Inc. All rights reserved. This information is deemed reliable, but not guaranteed. The data relating to real estate displayed on this display comes in part from the IDX Program of PrimeMLS. The information being provided is for consumers’ personal, non-commercial use and may not be used for any purpose other than to identify prospective properties consumers may be interested in purchasing. Data last updated February 18, 2026 7:38 PM EST

 

Hi there! How can we help you?

Contact us using the form below or give us a call.

Send Us A Message:

I agree to receive marketing and customer service calls and text messages from Central Falls Realty. To opt out, you can reply 'stop' at any time or click the unsubscribe link in the emails. Consent is not a condition of purchase. Msg/data rates may apply. Msg frequency varies. Privacy Policy.

Do not fill in this field:

This site is protected by reCAPTCHA and the Google Privacy Policy and Terms of Service apply.

Hi there! How can we help you?

Contact us using the form below or give us a call.

Send Us A Message:

Do not fill in this field:

This site is protected by reCAPTCHA and the Google Privacy Policy and Terms of Service apply.

Hi there! How can we help you?

Contact us using the form below or give us a call.

Send Us A Message:

Do not fill in this field:

This site is protected by reCAPTCHA and the Google Privacy Policy and Terms of Service apply.

Do not fill in this field:

This site is protected by reCAPTCHA and the Google Privacy Policy and Terms of Service apply.

Do not fill in this field:

This site is protected by reCAPTCHA and the Google Privacy Policy and Terms of Service apply.

Do not fill in this field:

This site is protected by reCAPTCHA and the Google Privacy Policy and Terms of Service apply.

$

Do not fill in this field:

This site is protected by reCAPTCHA and the Google Privacy Policy and Terms of Service apply.