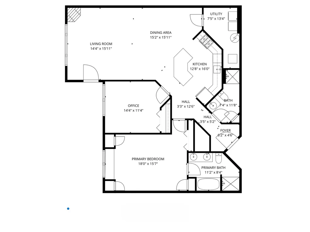
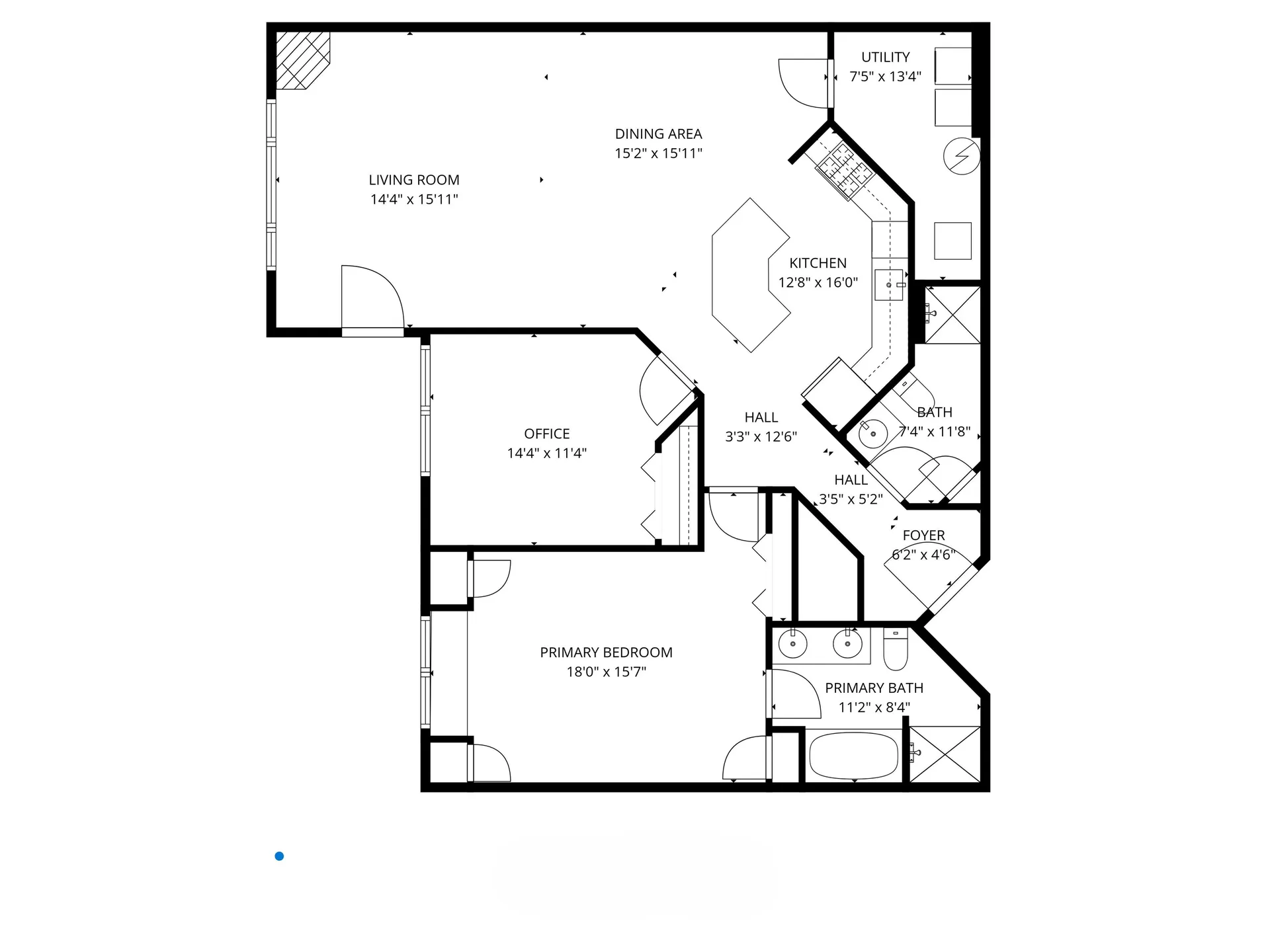
Enjoy condo living at Village at Sterling Hill, a desirable 55+ community in Exeter NH. First Floor condo offering private access to back yard & deck. # 514 is convenient to the front foyer and elevator to heated garage. This two bedroom two bathroom condo has an open concept floorplan to include kitchen, dining & living room. The welcoming corner gas fireplace & large window in living room make you feel right at home. The kitchen is beautiful with tray ceiling, recessed lighting, large granite island & tile backsplash, utility room w/ laundry & storage and are sure to enhance your lifestyle. Enjoy the primary suite w/4 closets, a window seat w/storage, bathroom with tub and shower with tile flooring. The 2nd bedroom could be used as den or office. Guest bathroom is off the hallway convenient to the 2nd bedroom. Crown molding and wainscotting in open concept area & hardwood floors in the kitchen, dining area and living room. The Village at Sterling Hill offers convenience of common areas such as a beautiful lobby, elevator, temperature controlled parking garage secure entrance & mailroom, a separate recreation building w/ expansive exercise room, outdoor patio w/ grills, great room for entertaining w/ 2 gas fireplaces, common galley kitchen & walking trails. Great location convenient to downtown Exeter w/ great restaurants, shopping, hospitals, Route 101 & I-95.

Listing Tools

Property Details of 5 Sterling Hill Lane, Unit 514

Property Details

Interior Features

Exterior Features

Utilities and Appliances

Community

Other Details

Finance

Map Location

Broker Reciprocity 

Copyright 2025 PrimeMLS, Inc. All rights reserved. This information is deemed reliable, but not guaranteed. The data relating to real estate displayed on this display comes in part from the IDX Program of PrimeMLS. The information being provided is for consumers’ personal, non-commercial use and may not be used for any purpose other than to identify prospective properties consumers may be interested in purchasing. Data last updated November 8, 2025 1:37 PM EST

 

Hi there! How can we help you?

Contact us using the form below or give us a call.

Send Us A Message:

I agree to receive marketing and customer service calls and text messages from Central Falls Realty. To opt out, you can reply 'stop' at any time or click the unsubscribe link in the emails. Consent is not a condition of purchase. Msg/data rates may apply. Msg frequency varies. Privacy Policy.

Do not fill in this field:

This site is protected by reCAPTCHA and the Google Privacy Policy and Terms of Service apply.

Hi there! How can we help you?

Contact us using the form below or give us a call.

Send Us A Message:

Do not fill in this field:

This site is protected by reCAPTCHA and the Google Privacy Policy and Terms of Service apply.

Hi there! How can we help you?

Contact us using the form below or give us a call.

Send Us A Message:

Do not fill in this field:

This site is protected by reCAPTCHA and the Google Privacy Policy and Terms of Service apply.

Do not fill in this field:

This site is protected by reCAPTCHA and the Google Privacy Policy and Terms of Service apply.

Do not fill in this field:

This site is protected by reCAPTCHA and the Google Privacy Policy and Terms of Service apply.

Do not fill in this field:

This site is protected by reCAPTCHA and the Google Privacy Policy and Terms of Service apply.

$

Do not fill in this field:

This site is protected by reCAPTCHA and the Google Privacy Policy and Terms of Service apply.