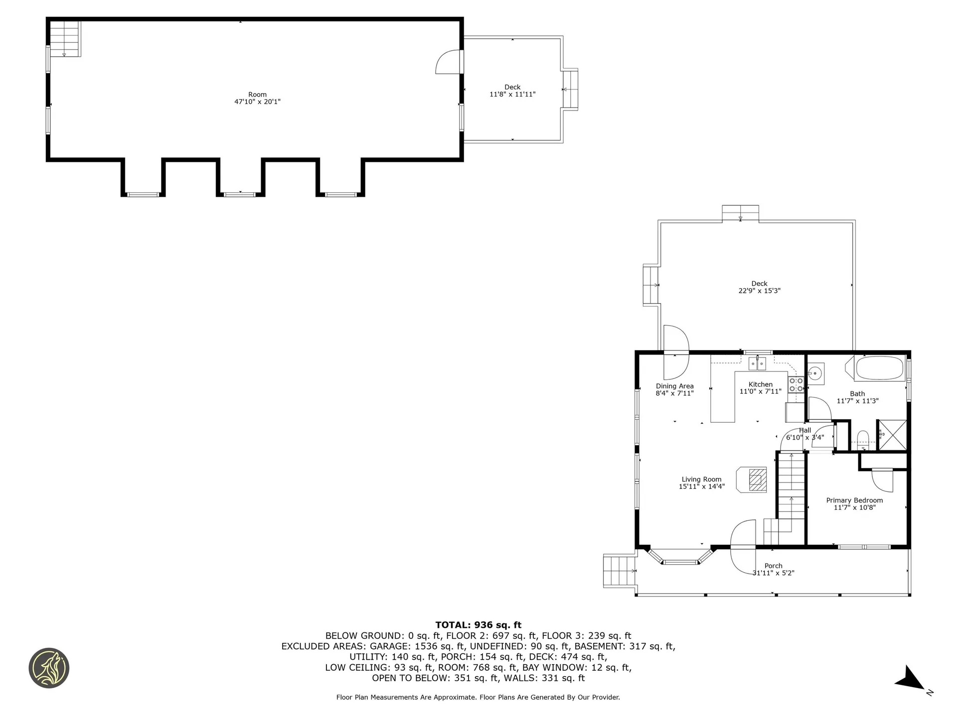
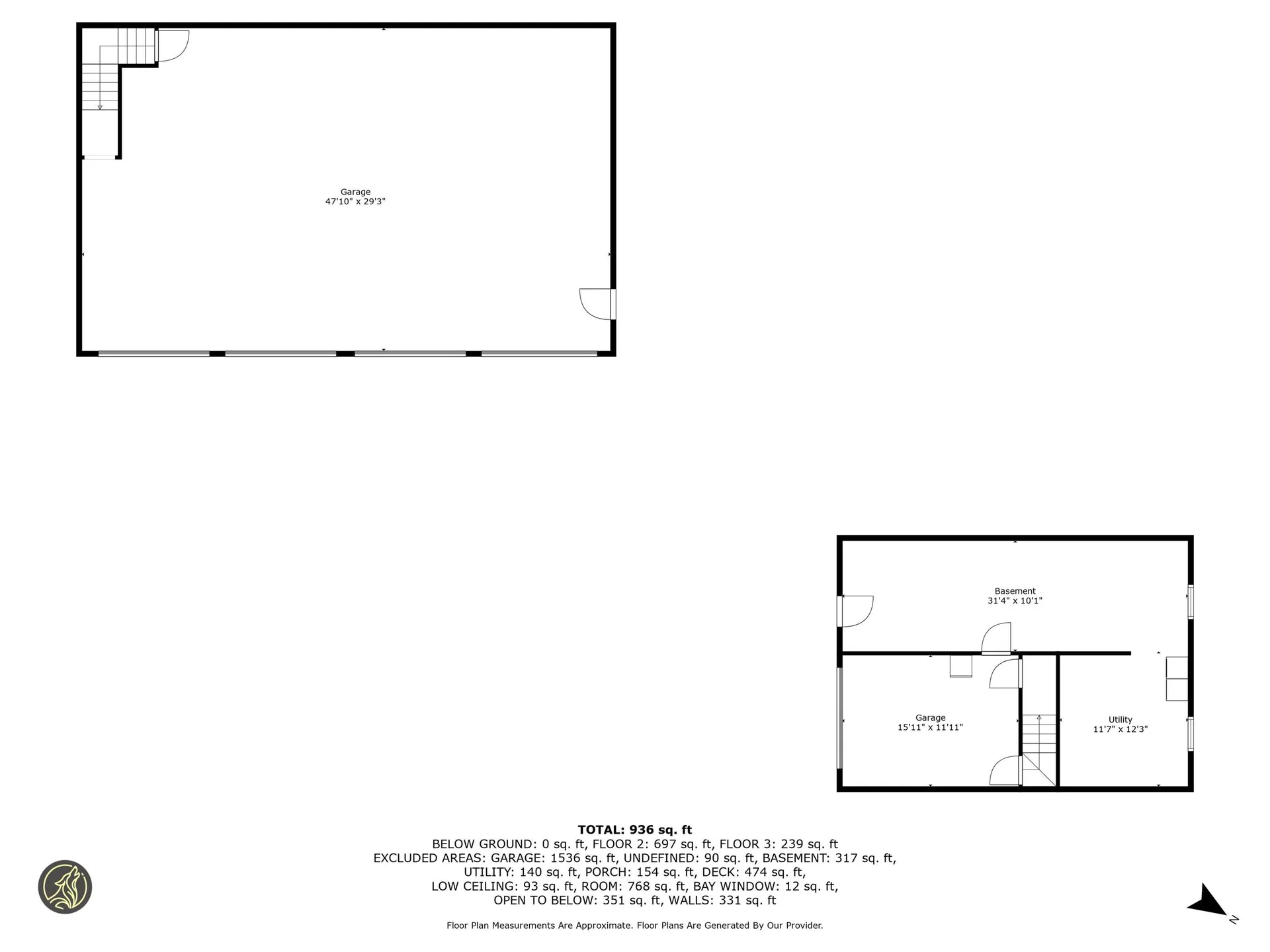
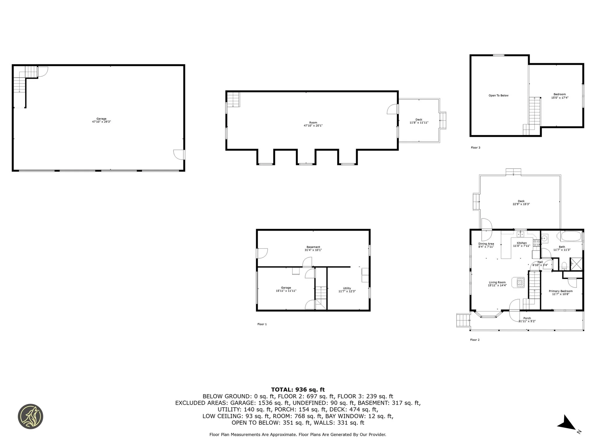
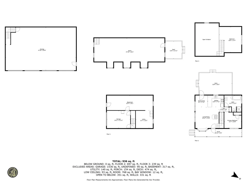
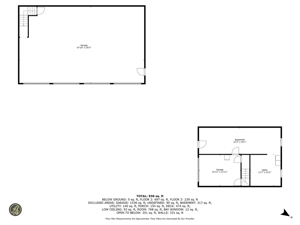
Welcome to 24 Ragged Mountain Road - a charming 1-bedroom PLUS loft, 1-bath log home on 3.5 wooded acres in the peaceful town of New Durham. Attached 1 car garage plus HUGE 4-car garage with bonus room above, could make a great assessory dwelling! Whether you're seeking a private getaway, a starter home with character, or a basecamp for your next creative venture, this property is full of potential. Step inside the rustic log home and enjoy the warmth of natural wood accents and a cozy layout that invites you to relax and unwind. The open living space blends comfort and simplicity, making it ideal for year-round living or a seasonal retreat. One of the standout features is the three-bay detached garage, offering ample room for vehicles, storage, or your dream workshop, and the potential for additional living space above. Hobbyists, tinkerers, and DIY enthusiasts will love the flexibility and space this setup provides. With a new roof in 2023, maintenance is set to forget! Set well back from the road and surrounded by nature, this property offers exceptional privacy with room to expand, garden, or simply enjoy the quiet life. Located just a short drive from lakes, trails, and local amenities, you'll enjoy the best of both worlds - tranquility and convenience. Don't miss your chance to own this unique slice of New Hampshire living. With a bit of vision, 24 Ragged Mountain Road could be the perfect escape, workspace, or investment!

Listing Tools

Property Details of 24 Ragged Mountain Road

Property Details

Interior Features

Exterior Features

Utilities and Appliances

Community

Other Details

Finance

Map Location

Broker Reciprocity 

Copyright 2025 PrimeMLS, Inc. All rights reserved. This information is deemed reliable, but not guaranteed. The data relating to real estate displayed on this display comes in part from the IDX Program of PrimeMLS. The information being provided is for consumers’ personal, non-commercial use and may not be used for any purpose other than to identify prospective properties consumers may be interested in purchasing. Data last updated November 11, 2025 2:08 AM EST

 

Hi there! How can we help you?

Contact us using the form below or give us a call.

Send Us A Message:

I agree to receive marketing and customer service calls and text messages from Central Falls Realty. To opt out, you can reply 'stop' at any time or click the unsubscribe link in the emails. Consent is not a condition of purchase. Msg/data rates may apply. Msg frequency varies. Privacy Policy.

Do not fill in this field:

This site is protected by reCAPTCHA and the Google Privacy Policy and Terms of Service apply.

Hi there! How can we help you?

Contact us using the form below or give us a call.

Send Us A Message:

Do not fill in this field:

This site is protected by reCAPTCHA and the Google Privacy Policy and Terms of Service apply.

Hi there! How can we help you?

Contact us using the form below or give us a call.

Send Us A Message:

Do not fill in this field:

This site is protected by reCAPTCHA and the Google Privacy Policy and Terms of Service apply.

Do not fill in this field:

This site is protected by reCAPTCHA and the Google Privacy Policy and Terms of Service apply.

Do not fill in this field:

This site is protected by reCAPTCHA and the Google Privacy Policy and Terms of Service apply.

Do not fill in this field:

This site is protected by reCAPTCHA and the Google Privacy Policy and Terms of Service apply.

$

Do not fill in this field:

This site is protected by reCAPTCHA and the Google Privacy Policy and Terms of Service apply.